客厅隔出一间卧室的最佳方案(大客厅隔出一间卧室成功案例)

首页 » 影视资讯 » 正文

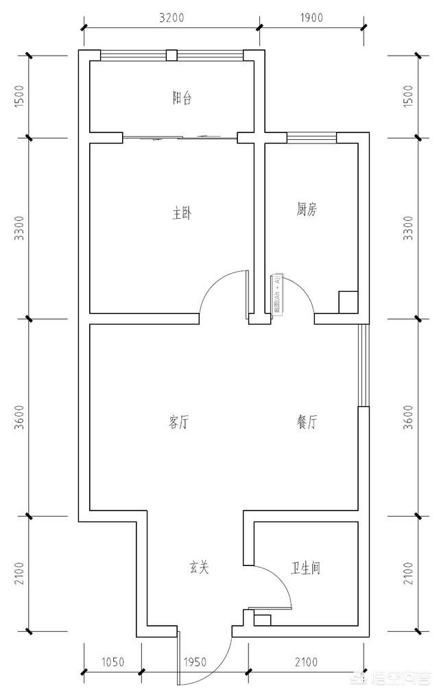
先分析下原户型及需求:原户型空间构成由由下至上为入户玄关、卫生间、客厅、餐厅、一间卧室及阳台、厨房组成,室内墙体看上去均为承重墙,动墙改造余地不大。题主需要增加一间卧室供两个女儿使用。先看主卧:主卧面积不到10平方米,一张双人床、两个床头柜及一组衣橱放下来,面积所剩无几,阳台也放不了两张床,而且空间无法隔开,相互干扰太大,也影响阳台正常使用,所以主卧先排除。厨房与卫生间也只有排除。客厅与餐厅其实为一体空间,面积共计16平方米,由于室内动线的分割可以看作两部分,左为客厅,右为参厅,按常规再分出一间卧室,在16平方米范围内分割出客厅、餐厅、卧室三个功能也不太可能,所以只有将其中两个功能合并,如:卧室与客厅合并、卧室与餐厅合并、餐厅与客厅合并,功能复合叠加,才能有可能满足题主的需求。

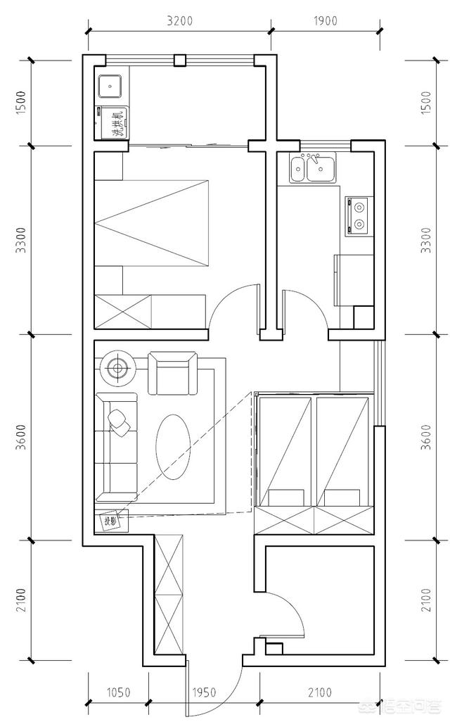
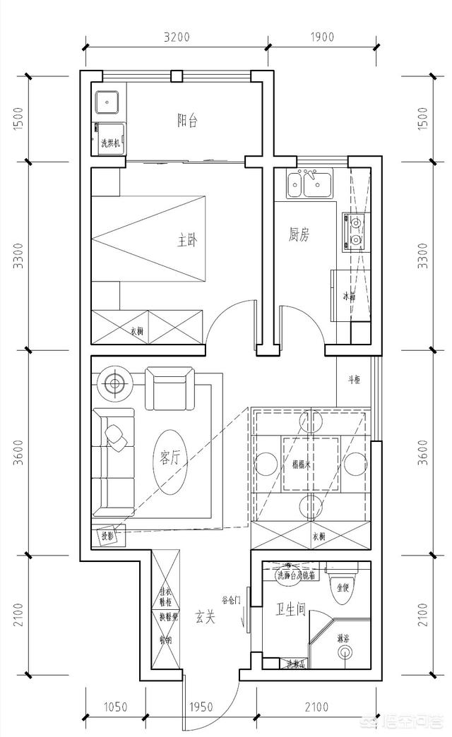
我这提供一种思路供参考:卧室与餐厅合并。见平面布置图。具体做法:餐厅部分做榻榻米,中间做升降台。靠卫生间墙做一排衣橱,衣櫉上方设榻榻米大小约2米x2米,中间升降台约1米x1米,坐4个人吃饭毫无问题,平时也可作为小孩写作业及亲子游戏区,晚上就寝铺上被褥睡二个成人都没问题,可能每天这是折腾可能有些麻烦,但我觉得煅炼小孩从小就学会整理自己的空间也是很好的一方面。榻榻米与客厅之间可以做推拉隔断也可以做上拉卷帘式隔断(记得电视节目《梦想改造家》有一期做的就是竹制卷帘,效果很好,可以上网搜索看下),或者干脆不做隔断,空间更加开放自由。靠右侧窗放一斗柜,加强收纳。剩下空间就给客厅,无法做电视墙,可以做投影,更加时尚。

另外两种组合效果可能没有上面这种好,有兴趣的话可以尝试下。

希望对您有所帮助与启发。




麻烦需求提的清楚一点,共几个人住,两个女孩多大?生活有什么需求?房子的用途?

先分析下原户型及需求:原户型空间构成由由下至上为入户玄关、卫生间、客厅、餐厅、一间卧室及阳台、厨房组成,室内墙体看上去均为承重墙,动墙改造余地不大。题主需要增加一间卧室供两个女儿使用。先看主卧:主卧面积不到10平方米,一张双人床、两个床头柜及一组衣橱放下来,面积所剩无几,阳台也放不了两张床,而且空间无法隔开,相互干扰太大,也影响阳台正常使用,所以主卧先排除。厨房与卫生间也只有排除。客厅与餐厅其实为一体空间,面积共计16平方米,由于室内动线的分割可以看作两部分,左为客厅,右为参厅,按常规再分出一间卧室,在16平方米范围内分割出客厅、餐厅、卧室三个功能也不太可能,所以只有将其中两个功能合并,如:卧室与客厅合并、卧室与餐厅合并、餐厅与客厅合并,功能复合叠加,才能有可能满足题主的需求。

我这提供一种思路供参考:卧室与餐厅合并。见平面布置图。具体做法:餐厅部分做榻榻米,中间做升降台。靠卫生间墙做一排衣橱,衣櫉上方设榻榻米大小约2米x2米,中间升降台约1米x1米,坐4个人吃饭毫无问题,平时也可作为小孩写作业及亲子游戏区,晚上就寝铺上被褥睡二个成人都没问题,可能每天这是折腾可能有些麻烦,但我觉得煅炼小孩从小就学会整理自己的空间也是很好的一方面。榻榻米与客厅之间可以做推拉隔断也可以做上拉卷帘式隔断(记得电视节目《梦想改造家》有一期做的就是竹制卷帘,效果很好,可以上网搜索看下),或者干脆不做隔断,空间更加开放自由。靠右侧窗放一斗柜,加强收纳。剩下空间就给客厅,无法做电视墙,可以做投影,更加时尚。

另外两种组合效果可能没有上面这种好,有兴趣的话可以尝试下。

希望对您有所帮助与启发。




麻烦需求提的清楚一点,共几个人住,两个女孩多大?生活有什么需求?房子的用途?

先分析下原户型及需求:原户型空间构成由由下至上为入户玄关、卫生间、客厅、餐厅、一间卧室及阳台、厨房组成,室内墙体看上去均为承重墙,动墙改造余地不大。题主需要增加一间卧室供两个女儿使用。先看主卧:主卧面积不到10平方米,一张双人床、两个床头柜及一组衣橱放下来,面积所剩无几,阳台也放不了两张床,而且空间无法隔开,相互干扰太大,也影响阳台正常使用,所以主卧先排除。厨房与卫生间也只有排除。客厅与餐厅其实为一体空间,面积共计16平方米,由于室内动线的分割可以看作两部分,左为客厅,右为参厅,按常规再分出一间卧室,在16平方米范围内分割出客厅、餐厅、卧室三个功能也不太可能,所以只有将其中两个功能合并,如:卧室与客厅合并、卧室与餐厅合并、餐厅与客厅合并,功能复合叠加,才能有可能满足题主的需求。

我这提供一种思路供参考:卧室与餐厅合并。见平面布置图。具体做法:餐厅部分做榻榻米,中间做升降台。靠卫生间墙做一排衣橱,衣櫉上方设榻榻米大小约2米x2米,中间升降台约1米x1米,坐4个人吃饭毫无问题,平时也可作为小孩写作业及亲子游戏区,晚上就寝铺上被褥睡二个成人都没问题,可能每天这是折腾可能有些麻烦,但我觉得煅炼小孩从小就学会整理自己的空间也是很好的一方面。榻榻米与客厅之间可以做推拉隔断也可以做上拉卷帘式隔断(记得电视节目《梦想改造家》有一期做的就是竹制卷帘,效果很好,可以上网搜索看下),或者干脆不做隔断,空间更加开放自由。靠右侧窗放一斗柜,加强收纳。剩下空间就给客厅,无法做电视墙,可以做投影,更加时尚。

另外两种组合效果可能没有上面这种好,有兴趣的话可以尝试下。

希望对您有所帮助与启发。




个人建议装修成上下床。为什么呢?第一小孩可以陪养成独立的的生活,第二让他尽早的适应一个人睡觉,第三等她上学了也是要住上下铺的,所以可以让她早点适应也是最好的一点,你觉得呢?


本文来自投稿,不代表本站立场,如若转载,请注明出处:https://www.cxcxb.com/artdetail-23402/
 推荐视频

钻石般的她

路易莎·拉涅瑞 杰丝敏·特丽卡 斯特凡诺·阿科尔西 卢卡·巴尔巴罗萨 萨拉·博西 洛雷达纳·卡纳塔 杰皮·库奇阿里 安娜·费泽蒂 奥罗拉·乔维纳佐 妮可·吉玛多 米莱娜·曼奇尼 维尼乔·马尔基奥尼 葆拉·米纳乔尼 爱多阿多·普尔加托里 卡尔米内·雷卡诺 艾莱娜·索菲亚·里奇 卢妮塔·萨维诺 凡妮莎·斯卡莱拉 卡拉·西格诺里斯 卡夏·斯穆特尼亚克

观世音国语

赵雅芝 任达华 吴君如 刘丹

三星堆里有个村

黄品沅 杨迪 赵海燕 张歆怡 吕昀峰 赵亮 刘仪伟 郑彧垚 毛明睿 庞润宇 张小红 曾晓琴 毛禹俊辰 魏珍珍 紫鸢 侯少见 巫兴义 黄海波 车大全 周帝 湛瑞雪 马永华 卿玉婷 刘期军 温成良 刘诗兵 罗润波 林中述 湛方保 范伦建 魏盛江 王友顺 游洪清 林明举 袁宗俊 余诗海 庄景伟 卿尚军 黄兴利

雷杰普的精彩人生7

沙汗.古克巴卡尔 Öznur Serçeler Irfan Kangi

无名指国语

郭富城   许恩怡   鲍起静   梁咏琪   谭耀文

神鬼猎人:在结冰的路上

Milo Parker Anke Engelke Bastian Pastewka

美少女战士Sailor Stars国语

三石琴乃 久川绫 富泽美智惠 筱原惠美 深见梨加 荒木香惠 石田彰 古川登志夫 古谷彻

朋克 三角

长野凌大   藤林泰也   雏形明子   栗原类   中村純猛   秋谷百音   姫子松柾   大川優羽   鈴木恒守   凜大

穿越时空的少女1994

内田有纪 河相我聞 鈴木蘭々 菅野美穂 山下真希 森本レオ 吉沢京子 安室奈美恵 塚本信夫

手机刑事-钱形舞

堀北真希 山下真司 金刚地武志

 用户评论
 正在加载