中国别墅大宅设计展(什么是大宅装修体验)

首页 » 热门资讯 » 正文

大宅我感觉说的是独栋别墅类型的是房屋,小编就说说对别墅好装修的理解


1.别墅造价都几乎达到了1:1,甚至装修价格超过了买房价格也是常有的,所以在造价上别墅是很重要的一个板块,在前期就需要将清单处理完成,并且后期有没有超出预期过多,这也是标准之一

2.动线,别墅的动线很重要,是否符合主人日常的运动轨迹,是否考虑到了老人房的便利性?是否造成了太多的死角?等等

3.材料,是否合理根据业主的需求选取适合的材料

4.需求,举个例子,如果设置了保姆房,是否在保姆房中设置了厕所,因为,一旦有重要客人在家做客,而保姆突然走出来上厕所,客人的感受是否不好?这些都是需求,不同的业主都有具体的需求。是否有被满足

总的来说,小编认为,就是设计是否到位,设计师是否够好,别墅一般性都有传承的意味在里面,所以从开始动工到最后都需要谋划清楚。

那现在小编根据【点点设计APP】就给大家分享一下别墅的家居设计


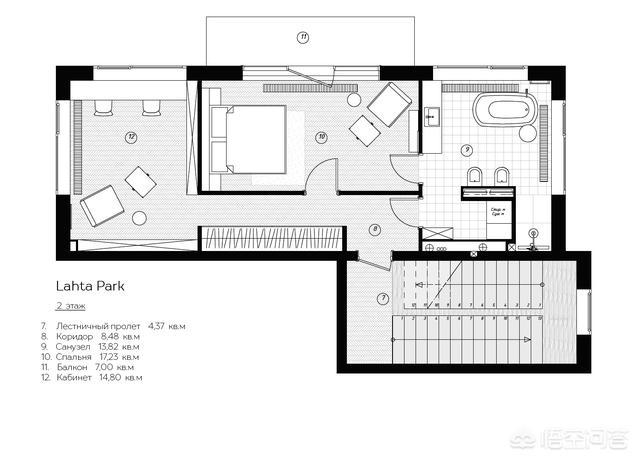
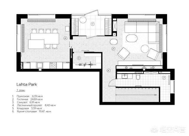
一楼客厅、餐厅、厨房、玄关



二楼:主卧、书房

三楼次卧、儿童房、公共区域

【点点设计APP】是国内最为资深的老牌设计师杂志,依仗多年内容沉淀,升级而成的互联网平台。

设计师杂志创刊10多年来,几乎见证了国内2000年以后每一代室内设计师的成长经历,对设计生态圈的了解可以说是极为深入的,目前平台上已经积累了数千设计师的作品,如果有朋友希望深入了解设计师,观看更多的设计师作品,可以关注【点点设计APP】头条号,或者直接下载【点点设计APP】

金地自在城大宅设计完工篇

设计师说,对于这套别墅的设计上更加突出的强调了功能性,强调结构和形式的完整,更追求材料、技术、空间的表现深度与精确。

整体主张内外融合、兼容并蓄的折衷主义立场,通过糅合多种质感的材料塑造一种简约的理念,于简单中展现出丰富的韵味。运用了众多隐喻性的视觉符号在作品中,强调了艺术性和文化性,肯定了软装饰对于视觉的象征作用。


业主感言:

非常感谢红牛装饰公司,还有项目经理。

在刚开始设计的时候,我的许多想法还不很成熟,会有很多想法,不过只要我有要求,设计师就会不厌其烦修改方案,非常耐心热情。

还有就是项目监理,在施工期间我每次来工地与工人和项目经理交流的都非常的愉快,项目监理特别有责任心,事事都为我们着想并负责到位。而且他很热心,每次我有朋友来看工地的时候,他也会很热情的招待并耐心的介绍解说。

我觉得与红牛装饰签约是我做的一个正确选择。与设计师和项目监理的合作,我收获的不仅仅是一次装修,更多收获的是一份真诚、贴心和感动。

大宅我感觉说的是独栋别墅类型的是房屋,小编就说说对别墅好装修的理解


1.别墅造价都几乎达到了1:1,甚至装修价格超过了买房价格也是常有的,所以在造价上别墅是很重要的一个板块,在前期就需要将清单处理完成,并且后期有没有超出预期过多,这也是标准之一

2.动线,别墅的动线很重要,是否符合主人日常的运动轨迹,是否考虑到了老人房的便利性?是否造成了太多的死角?等等

3.材料,是否合理根据业主的需求选取适合的材料

4.需求,举个例子,如果设置了保姆房,是否在保姆房中设置了厕所,因为,一旦有重要客人在家做客,而保姆突然走出来上厕所,客人的感受是否不好?这些都是需求,不同的业主都有具体的需求。是否有被满足

总的来说,小编认为,就是设计是否到位,设计师是否够好,别墅一般性都有传承的意味在里面,所以从开始动工到最后都需要谋划清楚。

那现在小编根据【点点设计APP】就给大家分享一下别墅的家居设计


一楼客厅、餐厅、厨房、玄关



二楼:主卧、书房

三楼次卧、儿童房、公共区域

【点点设计APP】是国内最为资深的老牌设计师杂志,依仗多年内容沉淀,升级而成的互联网平台。

设计师杂志创刊10多年来,几乎见证了国内2000年以后每一代室内设计师的成长经历,对设计生态圈的了解可以说是极为深入的,目前平台上已经积累了数千设计师的作品,如果有朋友希望深入了解设计师,观看更多的设计师作品,可以关注【点点设计APP】头条号,或者直接下载【点点设计APP】

金地自在城大宅设计完工篇

设计师说,对于这套别墅的设计上更加突出的强调了功能性,强调结构和形式的完整,更追求材料、技术、空间的表现深度与精确。

整体主张内外融合、兼容并蓄的折衷主义立场,通过糅合多种质感的材料塑造一种简约的理念,于简单中展现出丰富的韵味。运用了众多隐喻性的视觉符号在作品中,强调了艺术性和文化性,肯定了软装饰对于视觉的象征作用。


业主感言:

非常感谢红牛装饰公司,还有项目经理。

在刚开始设计的时候,我的许多想法还不很成熟,会有很多想法,不过只要我有要求,设计师就会不厌其烦修改方案,非常耐心热情。

还有就是项目监理,在施工期间我每次来工地与工人和项目经理交流的都非常的愉快,项目监理特别有责任心,事事都为我们着想并负责到位。而且他很热心,每次我有朋友来看工地的时候,他也会很热情的招待并耐心的介绍解说。

我觉得与红牛装饰签约是我做的一个正确选择。与设计师和项目监理的合作,我收获的不仅仅是一次装修,更多收获的是一份真诚、贴心和感动。

大宅我感觉说的是独栋别墅类型的是房屋,小编就说说对别墅好装修的理解


1.别墅造价都几乎达到了1:1,甚至装修价格超过了买房价格也是常有的,所以在造价上别墅是很重要的一个板块,在前期就需要将清单处理完成,并且后期有没有超出预期过多,这也是标准之一

2.动线,别墅的动线很重要,是否符合主人日常的运动轨迹,是否考虑到了老人房的便利性?是否造成了太多的死角?等等

3.材料,是否合理根据业主的需求选取适合的材料

4.需求,举个例子,如果设置了保姆房,是否在保姆房中设置了厕所,因为,一旦有重要客人在家做客,而保姆突然走出来上厕所,客人的感受是否不好?这些都是需求,不同的业主都有具体的需求。是否有被满足

总的来说,小编认为,就是设计是否到位,设计师是否够好,别墅一般性都有传承的意味在里面,所以从开始动工到最后都需要谋划清楚。

那现在小编根据【点点设计APP】就给大家分享一下别墅的家居设计


一楼客厅、餐厅、厨房、玄关



二楼:主卧、书房

三楼次卧、儿童房、公共区域

【点点设计APP】是国内最为资深的老牌设计师杂志,依仗多年内容沉淀,升级而成的互联网平台。

设计师杂志创刊10多年来,几乎见证了国内2000年以后每一代室内设计师的成长经历,对设计生态圈的了解可以说是极为深入的,目前平台上已经积累了数千设计师的作品,如果有朋友希望深入了解设计师,观看更多的设计师作品,可以关注【点点设计APP】头条号,或者直接下载【点点设计APP】

说起这些古代流传下来的老话,只能当故事讲,现实社会完全没有必要再按这些风俗去做。

在古时候,一些有钱的大户最好不要住毫宅,当时有很多的强盗(当地人称他们"老缺")专找一些有钱的大户,在不注意的时侯,不是把孩子抱走,就是将主人或老人劫持了,蒙住双眼,将双耳灌入蜡烛汁,看不见听不着,然后派一位信差告诉主家:几天后,拿着多少钱在什么地方一手交钱,一手交人,如果错过了时间,就将人质杀掉。大家都看过水浒这本书,古时侯的"老缺"基本和水浒好汉差不多,专找地主员外这等大户,对穷人无防。那个时侯,大户人家出门办事,决对不敢住大宅,夜半人静时,"老缺"会神出鬼没的趴在屋梁上或着屋瓦上,等人睡熟时将人劫持走。所以,反是有钱人出门是不敢住大宅的以免出事。

贫不出远门,也是有一定讲头的,在古时侯,穷人因为身无分文,一般不愿出远门,有句话叫:穷家富路。在家再没吃的,总有活路,可以东家西家借点,如果出门就不同了,举目无亲,没吃没喝,不饿死在路上才怪里。古时候与现在大不相同,现在单身一人走到那里一天都能挣个百八二百块钱,就算孤身走到天边也不会把人饿死。

古时候,饿死路边骨的事很普遍,如果出远门身无分文,基本找不到挣钱的地方,男子汉大丈夫性格又比较钢直,宁愿饿死也不愿去乞讨,所以,如果是穷人没特殊大事一般不出远门。

本文来自投稿,不代表本站立场,如若转载,请注明出处:https://www.cxcxb.com/artdetail-52225/
 推荐视频

钻石般的她

路易莎·拉涅瑞 杰丝敏·特丽卡 斯特凡诺·阿科尔西 卢卡·巴尔巴罗萨 萨拉·博西 洛雷达纳·卡纳塔 杰皮·库奇阿里 安娜·费泽蒂 奥罗拉·乔维纳佐 妮可·吉玛多 米莱娜·曼奇尼 维尼乔·马尔基奥尼 葆拉·米纳乔尼 爱多阿多·普尔加托里 卡尔米内·雷卡诺 艾莱娜·索菲亚·里奇 卢妮塔·萨维诺 凡妮莎·斯卡莱拉 卡拉·西格诺里斯 卡夏·斯穆特尼亚克

观世音国语

赵雅芝 任达华 吴君如 刘丹

三星堆里有个村

黄品沅 杨迪 赵海燕 张歆怡 吕昀峰 赵亮 刘仪伟 郑彧垚 毛明睿 庞润宇 张小红 曾晓琴 毛禹俊辰 魏珍珍 紫鸢 侯少见 巫兴义 黄海波 车大全 周帝 湛瑞雪 马永华 卿玉婷 刘期军 温成良 刘诗兵 罗润波 林中述 湛方保 范伦建 魏盛江 王友顺 游洪清 林明举 袁宗俊 余诗海 庄景伟 卿尚军 黄兴利

雷杰普的精彩人生7

沙汗.古克巴卡尔 Öznur Serçeler Irfan Kangi

无名指国语

郭富城   许恩怡   鲍起静   梁咏琪   谭耀文

神鬼猎人:在结冰的路上

Milo Parker Anke Engelke Bastian Pastewka

美少女战士Sailor Stars国语

三石琴乃 久川绫 富泽美智惠 筱原惠美 深见梨加 荒木香惠 石田彰 古川登志夫 古谷彻

朋克 三角

长野凌大   藤林泰也   雏形明子   栗原类   中村純猛   秋谷百音   姫子松柾   大川優羽   鈴木恒守   凜大

穿越时空的少女1994

内田有纪 河相我聞 鈴木蘭々 菅野美穂 山下真希 森本レオ 吉沢京子 安室奈美恵 塚本信夫

手机刑事-钱形舞

堀北真希 山下真司 金刚地武志

 用户评论
 正在加载